Beach houses

Project at MVSA

Along the vast Dutch coast with wide sandy beaches we have designed beach houses at two locations, Cadzand and Petten. Central to both designs is the experience of the sea and the atmosphere of life on the beach. The beach houses are slightly turned in relation to each other or placed staggered on the wide beach to guarantee the privacy of the houses in relation to each other.

The beach is bursting with colour, every detail from brightly coloured beach towels to parasols and beach balls contributes to the colourful decor of carefree days. For the beach houses neutral, restrained colours were chosen. The colours of the facade match the colours of the dune landscape and the sandy beach. and thus create a unity that radiates peace and supports the relaxed atmosphere of the beach.

Cadzand

Client

Molecaten

Location

Cadzand

Design

Petten

Client

Nieuwenhuizen Groep

Location

Petten

Design

Cadzand

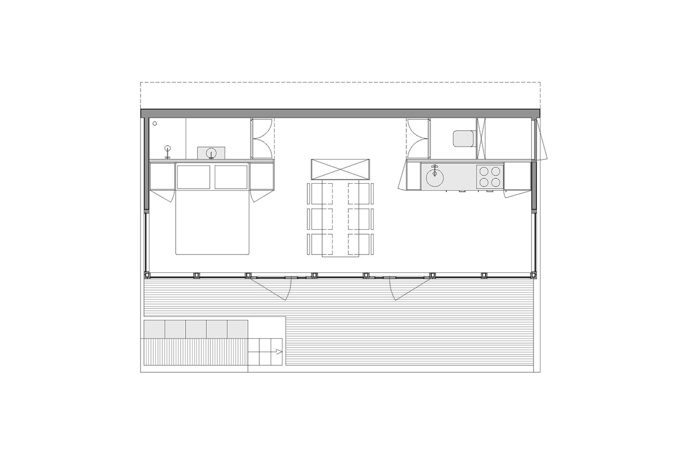
the design of the beach houses in Cadzand are characterized by a very compact footprint and a wide beach-oriented facade. The ground floor with a bedroom, kitchen and living area merge seamlessly into the outdoor terraces. With wide double doors, the terrace can become an extension of the living areas. Two sleeping cabins can be reached via a staircase against the sloping rear facade, the roof folds up slightly to provide sufficient height and extra light. The terraces with integrated lounge areas provide a soft transition to the beach.

The organic shape and the reserved use of color ensure that the beach houses blend in with the Cadzand beach.

Beach house on the wide North Sea beach of Cadzand

Petten

The beach house in Petten is built from two modules and has an L-shaped floor plan. The wide front with a living space, terrace and master bedroom is oriented towards the sea, the connection at the back with a kitchen, bathroom and bedroom provides a more private outdoor space that is removed from the busy and lively sandy beach.

The beach houses have a light gray shell with soft curves.
Round fish-eye-like windows and roof openings provide extra views of the beach and the sky. The rear facade has a wooden filling with a milled pattern that refers to the sandy beach. A private outdoor space provides the residents of the beach house with shelter from the sun and the wind.